Описание
АПД 6: Промышленный агрегат поддержания давления для CO2. Агрегат поддержания давления АПД 6 (АПД-6,0) – это специализированное криогенное оборудование для автоматического контроля и стабилизации давления в резервуарах с жидкой углекислотой. АПД 6 широко применяется на промышленных объектах как надежный CO2-холодильник, гарантирующий безопасное хранение диоксида углерода без потерь продукта.
АПД 6 разработан специально для резервуаров РДХ-6,0 объемом до 6 м3 и обеспечивает непрерывную работу в автоматическом режиме.
Как работает АПД 6: принцип действия и преимущества
- Полная автоматизация: АПД 6 работает без участия оператора, автоматически регулируя давление путем охлаждения и конденсации газовой фазы CO2 на высокоэффективном теплообменнике.
- Универсальность применения АПД 6: Агрегат эффективен как для стационарных резервуаров РДХ длительного хранения, так и для транспортных цистерн.
- Сохранность качества углекислоты: АПД 6 работает с жидкой двуокисью углерода высшего и первого сорта по ГОСТ 8050-85. Холодопроизводительность полностью компенсирует теплопритоки, исключая испарение.
- Индивидуальное производство: Каждый АПД 6 изготавливается под конкретные параметры – объем емкости и рабочее давление, что обеспечивает максимальную эффективность.
- Сертификация для ОПО: АПД 6 имеет Декларацию ЕАЭС, необходимую для эксплуатации на опасных производственных объектах.
Модификации АПД 6: внутренний и внешний теплообменник
АПД 6 доступен в двух конфигурациях под разные типы резервуаров:
- АПД 6 с внешним теплообменником – для горизонтальных цистерн и резервуаров без встроенного теплообмена. Комплектуется компрессорно-конденсаторным блоком и пластинчатым теплообменником.
- АПД 6 с внутренним теплообменником – для вертикальных и горизонтальных резервуаров РДХ с медными трубчатыми теплообменниками в конструкции.
Срок службы АПД 6 составляет 10 лет. На все агрегаты АПД предоставляется гарантия 2 года.
Для подбора оптимальной модификации АПД 6 под ваши задачи обращайтесь к специалистам СпецКриоГаз по телефону +7 (343) 226 92 90.
Схемы подключения АПД 6: техническая документация
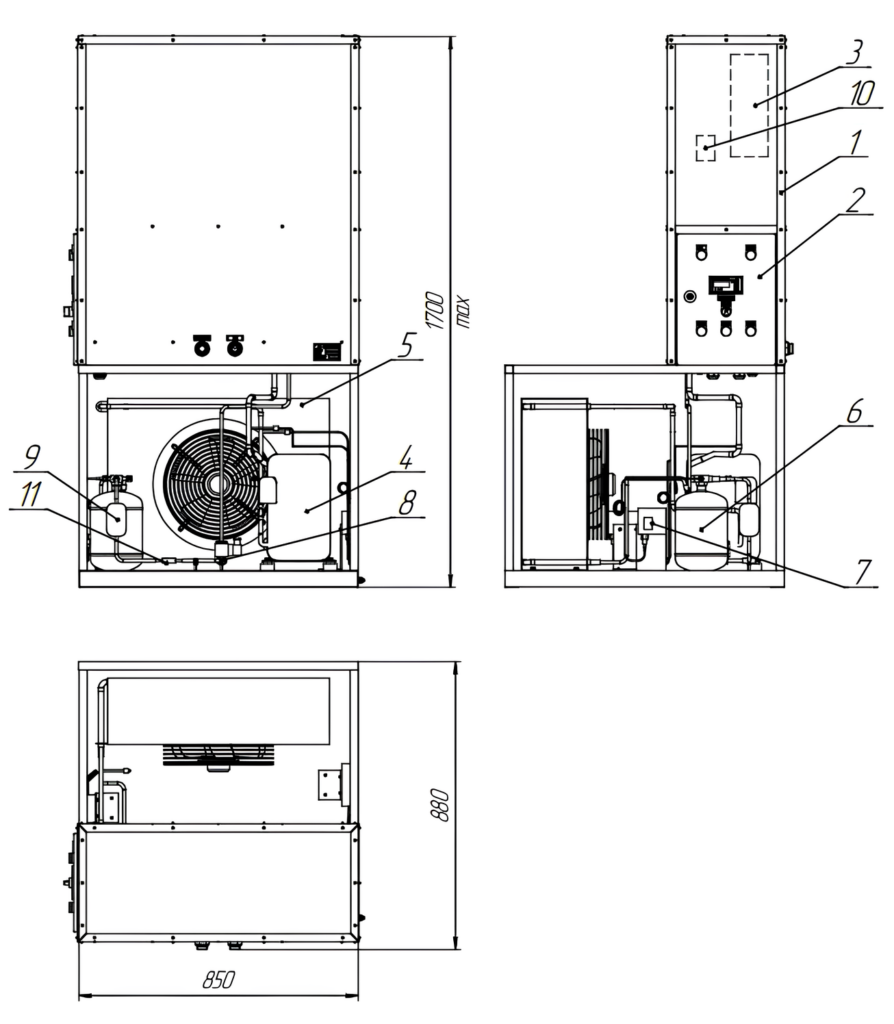
АПД 6 с выносным теплообменником:

1 – Рама; 2 – Шкаф управления; 3 – Пластинчатый теплообменник;
4 – Компрессор; 5 – Воздушный конденсатор; 6 – Ресивер; 7 – Реле давления;
8 – Соленоидный вентиль; 9 – Фильтр-осушитель; 10 – Терморегулирующий вентиль; 11 – Смотровое стекло.
АПД 6 со встроенным теплообменником:

1 – Рама; 2 – Шкаф управления; 3 – Теплообменник; 4 – Компрессор; 5 – Воздушный конденсатор; 6 – Ресивер; 7 – Реле давления; 8 – Соленоидный вентиль; 9 – Фильтр-осушитель; 10 – Терморегулирующий вентиль; 11 – Смотровое стекло.








