Описание
Агрегат поддержания давления АПД-30,0 используется для сохранения стабильного рабочего давления в резервуарах и цистернах, рассчитанных на длительное хранение или транспортировку жидкой углекислоты. Устройство предотвращает рост давления, вызванный внешним нагревом, обеспечивая неограниченный срок хранения CO₂ без потерь продукта.
Оборудование совместимо со стационарными ёмкостями (например, РДХ 30) и передвижными цистернами. АПД-30,0 работает с жидкой двуокисью углерода высшего и первого сорта по ГОСТ 8050-85 и предназначен для эксплуатации с резервуарами объёмом 30 м³, рабочим давлением от 18 кгс/см².
Ключевые преимущества АПД от СпецКриоГаз
Покупка агрегатов поддержания давления от СпецКриогаз Пермь — это выбор в пользу надёжного и технологичного оборудования со следующими преимуществами:
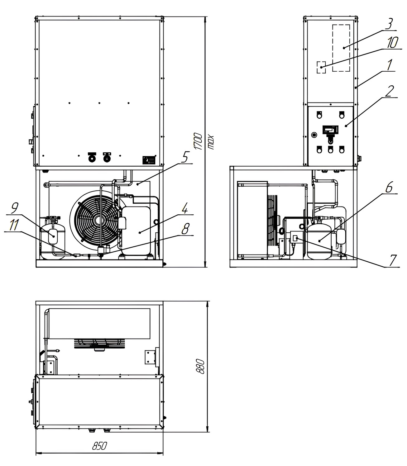
- Две версии исполнения: для стационарных резервуаров и транспортных цистерн.
- Полная автоматизация: непрерывная работа без постоянного контроля оператора.
- Универсальность монтажа: возможность установки в помещении или на улице под навесом.
- Диапазон рабочих температур: стабильная работа при температурах от -40°С до +40°С.
- Компоненты ведущих брендов: используются детали от производителей Siemens, Danfoss, Copeland и др.
- Цифровое управление: электронный блок для визуального контроля и точной настройки давления.
- Многоуровневая защита: предотвращение коротких замыканий, перепадов напряжения, аварийное отключение при неисправностях.
- Экологичность: применение озонобезопасного хладагента R404A.
- Простой монтаж: для запуска требуется только электричество и подключение к CO₂.
- Удобство обслуживания: продуманная конструкция для лёгкого доступа к узлам агрегата.
Эксплуатационные характеристики АПД-30
Агрегат работает в автономном режиме без участия оператора. Он сохраняет работоспособность в широком температурном диапазоне от -40°С до +40°С и может устанавливаться как внутри помещений, так и на улице под навесом. Для запуска требуется только подключение к электросети и соединение с коммуникациями резервуара СО₂.
Конструктивные исполнения АПД-30,0
Компания СпецКриогаз предлагает две модификации агрегата, разработанные для разных типов криогенных систем:
- АПД-30,0 со встроенным теплообменником: предназначен для резервуаров, имеющих в конструкции медные трубчатые теплообменники. Снижение давления происходит за счёт охлаждения и конденсации газовой фазы на поверхности теплообменного элемента.
- АПД-30,0 с выносным теплообменником: используется для цистерн и резервуаров без штатных теплообменников. Включает компрессорно-конденсаторный блок и пластинчатый теплообменник, где конденсируются пары СО₂.
Оба варианта изготавливаются индивидуально под параметры заказчика согласно техническому заданию.
СпецКриогаз Пермь — ведущий поставщик оборудования для работы с углекислотой. Десятки наших АПД успешно работают по всей России и за рубежом. Мы гарантируем соблюдение сроков поставки, наличие запасных частей на складе и полный пакет документов, включая Декларацию ЕАЭС для применения на опасных производственных объектах (ОПО). Для консультации звоните +7 (963) 444-88-82 или пишите на arm@kriogaz.com.










