АПД 8,0

340 000 

✅ Для цистерн/РДХ объёмом до 8 м3
✅ Холодопроизводительность 2,1 кВт
✅ Номинальное давление от 1,8 МПа (18 кгс/см2)

Описание

Агрегат поддержания давления АПД-8,0 — промышленное криогенное оборудование для автоматического контроля и стабилизации давления в резервуарах с жидкой углекислотой. АПД-8 предотвращает потери CO2 из-за испарения и обеспечивает безопасное хранение продукта без ограничения срока с сохранением всех качественных характеристик.

Агрегат поддержания давления АПД-8 применяется на опасных производственных объектах (ОПО), в пищевой и химической промышленности, металлургии и других отраслях. Работает со стационарными резервуарами объемом до 8 м3 (РДХ 4, РДХ 6, РДХ 8) и транспортными криогенными цистернами.

 

Принцип работы АПД-8

АПД 8 работает в полностью автоматическом режиме без участия оператора. Система поддерживает заданное давление за счет охлаждения и конденсации паров углекислоты на высокоэффективном теплообменнике.

Каждый агрегат поддержания давления АПД-8 проектируется индивидуально под параметры заказчика — объем резервуара и требуемое рабочее давление. Это гарантирует максимальную эффективность и надежность работы системы. АПД-8 имеет полный пакет разрешительной документации, включая Декларацию ЕАЭС для эксплуатации на ОПО.

 

Модификации АПД 8: внутренний и внешний теплообменник

АПД 8,0 выпускается в двух конфигурациях:

  • АПД с внутренним теплообменником: Для вертикальных и горизонтальных резервуаров РДХ, имеющих встроенные теплообменные системы в конструкции.
  • АПД с внешним теплообменником: Комплектуется автономным компрессорно-конденсаторным блоком и пластинчатым теплообменником. Оптимальное решение для горизонтальных емкостей без встроенного теплообменного оборудования.

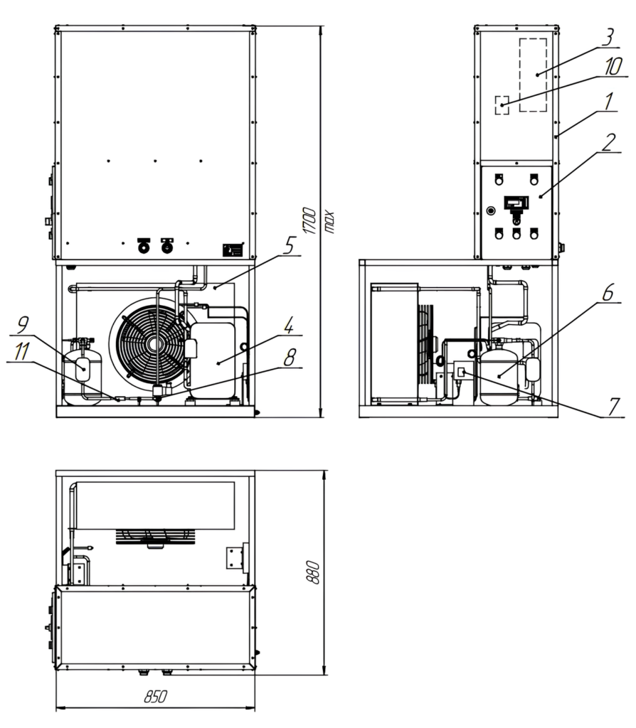
Схема АПД 8 с внутренним теплообменником

Схема АПД 8 с внутренним теплообменником
Схема АПД 8 с внутренним теплообменником:
1 – Рама; 2 – Шкаф управления; 3 – Теплообменник; 4 – Компрессор; 5 – Воздушный конденсатор; 6 – Ресивер; 7 – Реле давления; 8 – Соленоидный вентиль; 9 – Фильтр-осушитель; 10 – Терморегулирующий вентиль; 11 – Смотровое стекло.

Схема АПД 8 с внешним теплообменником

Схема АПД 8 с внешним теплообменником
Схема АПД 8 с внешним теплообменником:
1 – Рама; 2 – Шкаф управления; 3 – Пластинчатый теплообменник;
4 – Компрессор; 5 – Воздушный конденсатор; 6 – Ресивер; 7 – Реле давления;
8 – Соленоидный вентиль; 9 – Фильтр-осушитель; 10 – Терморегулирующий вентиль; 11 – Смотровое стекло.

 

Срок службы и гарантия

Агрегат поддержания давления АПД-8 имеет срок эксплуатации до 10 лет. СпецКриоГаз предоставляет гарантию 2 года на все агрегаты АПД.

Для заказа проекта с использованием АПД-8 обращайтесь к специалистам СпецКриоГаз по телефону +7 (343) 226 92 90.

Наши примеры работ с криогенным оборудованием в Перми

газификатор-кислорода гхк 3/1,6 100 для рыбзавода
Рыбоводный завод в республике Северная Осетия — Алания, рыбное хозяйство для выведения ценных пород рыб. Выполнена поставка двух газификаторов ГХК-3/1,6-100
замена атмосферных испарителей кислородных, Пермь
Крупное медицинское учреждение в Перми областного значения. Выполнена модернизация системы кислородоснабжения, обеспечивающую больницу газообразным кислородом. Изготовлены и заменены испарители атмосферные
криогенная цистерна ЦТК-8 для жидкого азота, поставка и монтаж, Пермь, Свердловская область
Предприятию в Свердловской области, занимающемуся производством бурильных труб в связи с модернизацией производства понадобилось ввести в эксплуатацию участок для хранения
монтаж кислородного газификатора ГХК-3, Пермь
Компании, занимающейся обслуживанием газотурбинного оборудования в Перми в связи с модернизацией производства потребовался кислород. Чтобы обеспечить потребность в достаточном для
демонтаж криогенного газификатора ГХК-25, Спецкриогаз
Предприятие в Свердловской области занимается производством теплоизоляционных материалов. В связи с модернизацией производства возникла необходимость демонтажа старого газификатора ГХК-25. Кроме
Пролистать наверх