АПД 4,0

300 000 

✅ Для цистерн/РДХ объёмом до 4 м3
✅ Холодопроизводительность 2,1 кВт
✅ Номинальное давление от 1,8 МПа (18 кгс/см2)

Описание

Криогенная система АПД 4,0 — профессиональное холодильное оборудование для автоматической стабилизации давления внутри ёмкостей с жидким диоксидом углерода (CO2). Систему часто называют “CO2-холодильник” или “углекислотная холодильная установка”. Агрегат АПД 4 обеспечивает сохранность криопродукта на неограниченный период без каких-либо потерь.

Разработан для использования с криогенными резервуарами РДХ 4,0 вместимостью 4 м3.

 

Как работает система и её основные достоинства:

  • Автономный контроль давления: Система функционирует в полностью автоматизированном режиме без вмешательства персонала. Снижение давления обеспечивается охлаждением и конденсацией газообразной фракции CO2 на специальном высокоэффективном теплообменном элементе.
  • Широкий спектр применения: АПД-4,0 одинаково эффективен для стационарных хранилищ (РДХ) и мобильных транспортных цистерн.
  • Поддержание качественных характеристик: Агрегат работает с жидкой углекислотой высшего и первого сорта согласно ГОСТ 8050-85. Производимый холод полностью нейтрализует внешние тепловые воздействия, исключая испарение содержимого.
  • Персонализированное проектирование: Все агрегаты производятся по индивидуальным техническим заданиям с учетом объема резервуара и требуемого рабочего давления для достижения оптимальной производительности.
  • Нормативное соответствие: АПД-4,0 имеет Декларацию ЕАЭС, обязательную для использования на опасных производствах (ОПО).

 

Варианты исполнения АПД 4

Предлагаем две версии агрегата в зависимости от типа теплообменного узла:

  • АПД-4,0 с встроенным теплообменником — для горизонтальных и вертикальных резервуаров РДХ, оснащенных медными трубчатыми теплообменными системами.
  • АПД-4,0 с выносным теплообменником — для горизонтальных емкостей и цистерн без встроенного теплообмена. Включает автономный компрессорно-конденсаторный модуль с пластинчатым теплообменником.

 

Технические схемы агрегатов АПД-4

схема АПД 4 с внутренним теплообменником
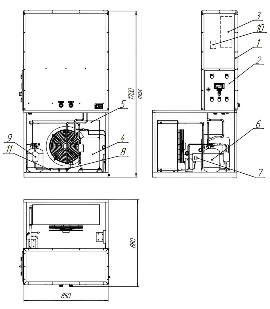
АПД 4,0…50,0 (встроенный теплообменник). Схема подключения:
1 – Рамная конструкция; 2 – Управляющий электрошкаф; 3 – Теплообменный элемент;
4 – Компрессорный блок; 5- Конденсатор воздушного охлаждения; 6- Ресиверный резервуар; 7- Датчик давления; 8 – Электромагнитный клапан; 9 – Осушающий фильтр; 10 – ТРВ (терморегулятор); 11 – Индикаторное окно.
схема АПД 4 с внешним теплообменником
АПД 4,0…50,0 (выносной теплообменник). Схема подключения:
1 – Рамная конструкция; 2 – Управляющий электрошкаф; 3 – Пластинчатый теплообменный аппарат;
4 – Компрессорный блок; 5 – Конденсатор воздушного охлаждения; 6 – Ресиверный резервуар; 7 – Датчик давления;
8 – Электромагнитный клапан; 9 – Осушающий фильтр; 10 – ТРВ (терморегулятор);
11 – Индикаторное окно.

Период эксплуатации АПД 4 составляет 10 лет. Все агрегаты серии АПД поставляются с гарантийным обслуживанием 2 года.

Для подбора оптимальной модификации АПД-4,0 под ваше криогенное оборудование обращайтесь к экспертам СпецКриоГаз по телефону +7 (343) 226 92 90

Наши примеры работ с криогенным оборудованием в Перми

газификатор-кислорода гхк 3/1,6 100 для рыбзавода
Рыбоводный завод в республике Северная Осетия — Алания, рыбное хозяйство для выведения ценных пород рыб. Выполнена поставка двух газификаторов ГХК-3/1,6-100
замена атмосферных испарителей кислородных, Пермь
Крупное медицинское учреждение в Перми областного значения. Выполнена модернизация системы кислородоснабжения, обеспечивающую больницу газообразным кислородом. Изготовлены и заменены испарители атмосферные
криогенная цистерна ЦТК-8 для жидкого азота, поставка и монтаж, Пермь, Свердловская область
Предприятию в Свердловской области, занимающемуся производством бурильных труб в связи с модернизацией производства понадобилось ввести в эксплуатацию участок для хранения
монтаж кислородного газификатора ГХК-3, Пермь
Компании, занимающейся обслуживанием газотурбинного оборудования в Перми в связи с модернизацией производства потребовался кислород. Чтобы обеспечить потребность в достаточном для
демонтаж криогенного газификатора ГХК-25, Спецкриогаз
Предприятие в Свердловской области занимается производством теплоизоляционных материалов. В связи с модернизацией производства возникла необходимость демонтажа старого газификатора ГХК-25. Кроме
Пролистать наверх