Описание
Углекислотный холодильник АПД 50,0 представляет собой специализированную холодильную машину, созданную для поддержания стабильного рабочего давления в резервуарах, используемых для длительного складирования или транспортировки сжиженной CO₂. Основное назначение установки — компенсация роста давления вследствие внешних тепловых воздействий, что обеспечивает сохранение жидкой углекислоты в течение неограниченного периода без потерь от испарения.
Оборудование работает в комплексе со стационарными хранилищами и передвижными цистернами. Холодильный агрегат АПД-50,0 предназначен для работы с жидкой двуокисью углерода 1-го сорта по ГОСТ 8050-85 и совместим с ёмкостями РДХ объёмом 50 м³, имеющими рабочее давление не менее 18 кгс/см².
Эксплуатационные характеристики
Углекислотный холодильник АПД-50,0 отличается полной автономностью работы — функционирует в автоматическом режиме без постоянного контроля оператора. Конструктивное исполнение позволяет эксплуатировать установку в широком температурном диапазоне окружающей среды: от -40°С до +40°С. Оборудование универсально в размещении: допускается монтаж как в производственных помещениях, так и на внешних площадках под защитным навесом. Для ввода в работу необходимо только электропитание и подключение к коммуникациям резервуара с СО₂.
Производитель предоставляет техническое сопровождение и сервисное обслуживание на протяжении всего жизненного цикла оборудования. Для подбора оптимальной конфигурации и расчёта рабочих параметров агрегата требуется предоставить информацию о ёмкости резервуара и рабочих давлениях в системе.
Преимущества углекислотных холодильников АПД от СпецКриоГаз
Приобретая агрегаты поддержания давления АПД-50,0 у компании «СпецКриоГаз» (Пермь), вы получаете современное и надежное холодильное оборудование со следующими ключевыми преимуществами:
- Автоматизированное управление: функционирование в автономном режиме без постоянного вмешательства оператора.
- Универсальность монтажа: возможность установки внутри помещений или на внешних площадках под навесом.
- Расширенный температурный диапазон: стабильная работа при температурах от -40°С до +40°С.
- Качественные компоненты: применение комплектующих от мировых производителей.
- Продвинутая система контроля: использование электронного блока управления для визуального мониторинга и точной регулировки давления.
- Многоуровневая защита: схемные решения включают защиту от короткого замыкания, перепадов напряжения, а также аварийное отключение при неисправности компрессора или утечке хладагента.
- Экологическая ответственность: применение озонобезопасного хладагента R404A.
- Оперативный ввод в эксплуатацию: для запуска требуется только подключение к электросети и коммуникациям СО₂.
- Техническое обслуживание: конструкция обеспечивает лёгкий доступ ко всем узлам для проведения сервисных работ.
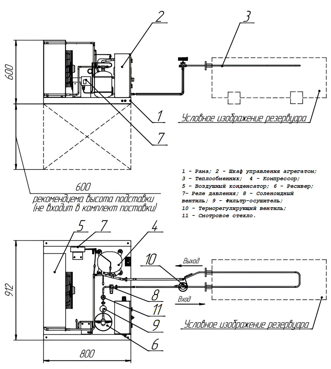
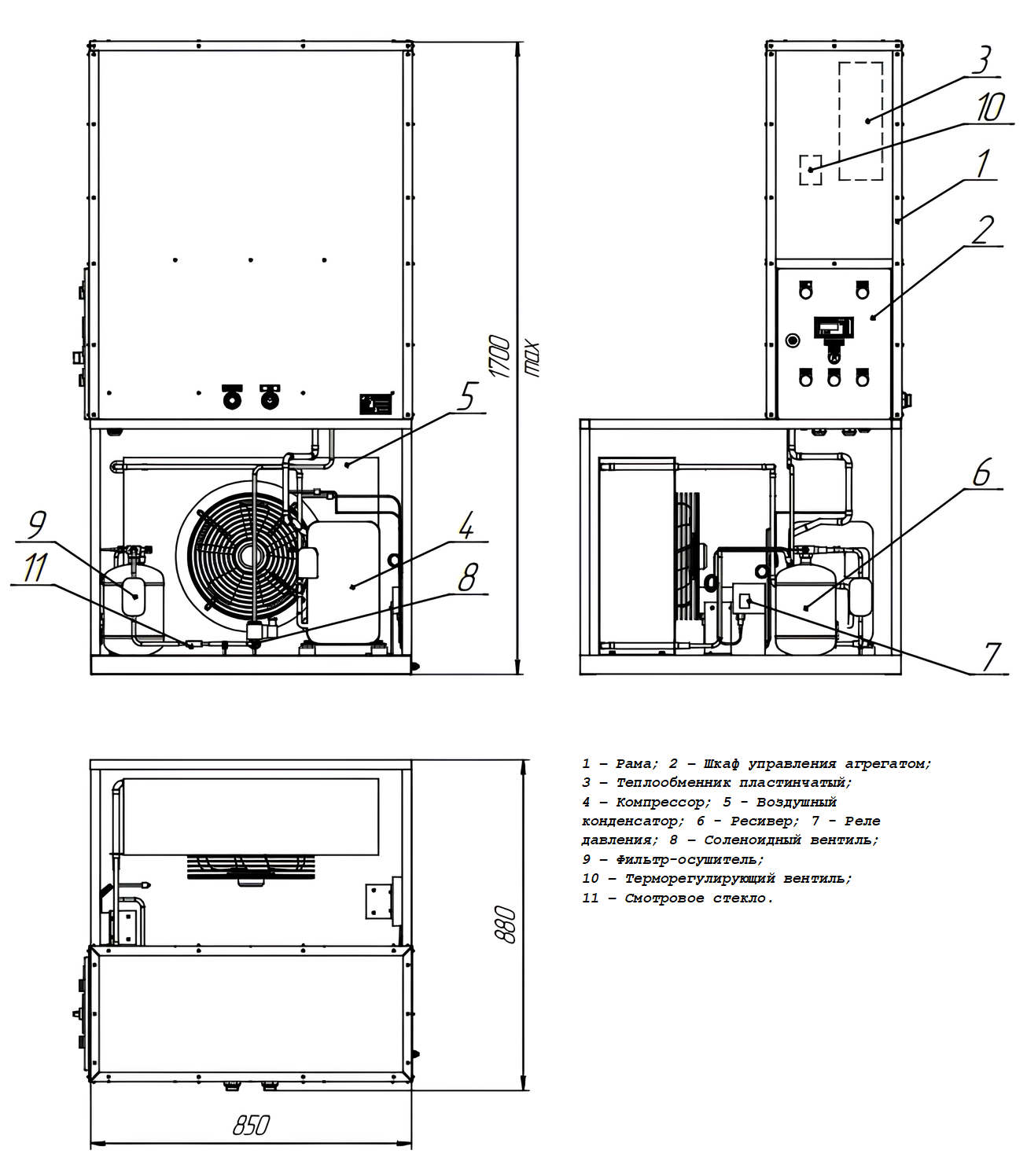
Исполнения углекислотного холодильника АПД-50,0
Компания СпецКриогаз Пермь выпускает две основные модификации холодильной машины, предназначенные для различных типов систем хранения:
АПД-50,0 со встроенным теплообменным аппаратом
Данное исполнение разработано для резервуаров, конструктивно укомплектованных внутренними медными трубчатыми теплообменниками. Стабилизация давления осуществляется посредством охлаждения и конденсации газовой фазы CO₂ на поверхности интегрированного теплообменного устройства.
АПД-50,0 с выносным теплообменным контуром
Эта модификация применяется для цистерн или резервуаров, не оснащённых штатными теплообменниками. Холодильная машина включает компрессорно-конденсаторный блок и высокоэффективный пластинчатый теплообменник, где происходит конденсация паров диоксида углерода.
Оба варианта исполнения проектируются и изготавливаются индивидуально, с учётом технических характеристик конкретной ёмкости заказчика.
Для оформления заказа и получения консультации обращайтесь в СпецКриоГаз Пермь: +7 (963) 444-88-82 или пишите на arm@kriogaz.com.










